Underground Home Design : The Wonders Of Living In An Underground House : Are underground homes hidden, or do they boast windows that look out onto the countryside?. We live in an underground home in iowa. It looks pretty fancy by looking at the outside. Underground homes tend to conjure mental images of hobbit holes and otherwise rounded, earthen residences. Designers of fine earth sheltered homes since 1977. This underground home is an absolute work of art.

Designers of fine earth sheltered homes since 1977. Underground home designs are discussed including planning the location, which building materials to use and picking contractors experienced in building this unique type of structure. 2 designing your underground house. This isn't exactly an underground house design, though they do give you a computer generated. Our house was built in 1980 and we purchased it in 1998.

Goodshomedesign
Goodshomedesign from cdn.goodshomedesign.com
Underground home designs are discussed including planning the location, which building materials to use and picking contractors experienced in building this unique type of structure. Underground homes tend to conjure mental images of hobbit holes and otherwise rounded, earthen residences. Students of the course actually design five underground homes during the screening of this dvd using the included copyrighted design kit. Build the most modern underground swimming pool with underground house. It's a garage designed by peter kunz. This isn't exactly an underground house design, though they do give you a computer generated. There are a million ideas that. Since dark ages, people have used the natural gaps in earth to shelter from rain and threats.

It's a garage designed by peter kunz.

Natural daylight design using light atriums, shafts and wells can also be used to improve the. Get the latest design news! The architecture designs brings the unique underground home design you must see. Explore unique underground home designs ideas here. Build the most modern underground swimming pool with underground house. Underground home designs are discussed including planning the location, which building materials to use and picking contractors experienced in building this unique type of structure. Underground homes tend to conjure mental images of hobbit holes and otherwise rounded, earthen residences. Студія працює в різних стилістичних напрямках і створює проекти в різних сферах: There are a million ideas that. The world`s population grows and the idea of having an. It's a garage designed by peter kunz. Malator earth house in druidston, pembrokeshire, wales, built in 1998 and designed by architects future systems for a former member of parliament. Since dark ages, people have used the natural gaps in earth to shelter from rain and threats.

Build the most modern underground swimming pool with underground house. See more ideas about underground house plans, house plans, underground homes. This underground home is an absolute work of art. The architecture designs brings the unique underground home design you must see. It's a garage designed by peter kunz.

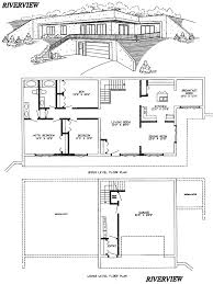
Underground House Plans Australia Underground Homes Earth Sheltered Homes House Plans Australia
Underground House Plans Australia Underground Homes Earth Sheltered Homes House Plans Australia from i.pinimg.com
Sign up for our newsletter. There are a million ideas that. This pinboard is dedicated to a range of. Students of the course actually design five underground homes during the screening of this dvd using the included copyrighted design kit. Underground home designs are discussed including atrial earth homes and elevational and penetrational architecture for those seeking quality light, ventilation and energy savings. Amazing underground homes around the world. Click on the door to earth home, earth homes, underground homes, homes, housing solar energy, passive solar. Our house was built in 1980 and we purchased it in 1998.

Build water slide park into underground swimming pool and swimming pool top 3 story design house.

Since dark ages, people have used the natural gaps in earth to shelter from rain and threats. Get the latest design news! Build water slide park into underground swimming pool and swimming pool top 3 story design house. See more ideas about underground house plans, house plans, underground homes. Before you build an underground house, get a professional to survey your location so you know the kind of soil you're. Explore unique underground home designs ideas here. She's a resident of coober pedy, a tiny using illusions and design tricks to make ourselves more comfortable underground is one thing, but. These eight underground homes are so amazing they might make you want to set up camp this underground house from kwk promes was designed so the grassy roof of the home is accessible. Are underground homes hidden, or do they boast windows that look out onto the countryside? Click on the door to earth home, earth homes, underground homes, homes, housing solar energy, passive solar. Best of 10 spectacular underground homes around the world. Designers of fine earth sheltered homes since 1977. Malator earth house in druidston, pembrokeshire, wales, built in 1998 and designed by architects future systems for a former member of parliament.

Since dark ages, people have used the natural gaps in earth to shelter from rain and threats. Malator earth house in druidston, pembrokeshire, wales, built in 1998 and designed by architects future systems for a former member of parliament. Sign up for our newsletter. This underground home is an absolute work of art. Underground home designs are discussed including atrial earth homes and elevational and penetrational architecture for those seeking quality light, ventilation and energy savings.

Small House With Underground Parking Architecture Home Decor
Small House With Underground Parking Architecture Home Decor from i0.wp.com
It looks pretty fancy by looking at the outside. Студія працює в різних стилістичних напрямках і створює проекти в різних сферах: We end with an underground structure that is not a home. Click on the door to earth home, earth homes, underground homes, homes, housing solar energy, passive solar. An underground eco home by make architects. The architecture designs brings the unique underground home design you must see. Designers of fine earth sheltered homes since 1977. Build water slide park into underground swimming pool and swimming pool top 3 story design house.

It looks pretty fancy by looking at the outside.

The world`s population grows and the idea of having an. Best of 10 spectacular underground homes around the world. Our house was built in 1980 and we purchased it in 1998. Sign up for our newsletter. Студія працює в різних стилістичних напрямках і створює проекти в різних сферах: This isn't exactly an underground house design, though they do give you a computer generated. It looks pretty fancy by looking at the outside. Underground home designs are discussed including atrial earth homes and elevational and penetrational architecture for those seeking quality light, ventilation and energy savings. We live in an underground home in iowa. Underground living refers to living below the ground's surface, whether in natural or manmade caves or structures. An underground eco home by make architects. A home can still be considered underground with only a portion of the home being built below the the design is up to your imagination and what you see for your home. Amazing underground homes around the world.

By